Addressing Natatorium Challenges with a Custom HVAC Solution
Learn how XeteX helps this community center pool natatorium breathe better through innovative HVAC design, material selection, and energy recovery.
HVAC Challenges in Pool Natatoriums
Natatoriums, such as pools used at indoor water parks or competition-sized swim meets, face four distinct HVAC challenges:
- Managing humidity and air temperatures to ensure a comfortable indoor climate for swimmers, spectators, and staff.
- Controlling pool treatment chemicals with adequate ventilation and filtration to maintain indoor air quality and a healthy environment.
- Safeguarding the building envelope from the effects of humidity and chemicals with quality equipment and corrosive resistant construction.
- Reducing operational costs through energy-efficient solutions.
XeteX custom RTU with natatorium dehumidification for a community center pool.
XeteX Custom Air Handling Solution Tackles Pool Natatorium Challenges
Check out this XeteX custom rooftop unit (RTU), innovatively engineered to handle the intricate demands of a community center pool natatorium. The design manages indoor air quality and climate control for swimmers and spectators, as well as non-corrosive material selection for long-lasting HVAC unit performance, energy efficiency, and safeguarding the building envelope.
The custom RTU features an all-aluminum construction with heresite-coated DX coils to withstand high humidity and the challenging chemical conditions of an indoor pool setting. It also includes packaged refrigeration and a stainless steel indirect fired furnace to ensure precise climate and humidity control. An energy recovery flat plate heat exchanger, featuring a modulating face and bypass damper, has been employed to enhance energy efficiency. High-efficiency filters, combined with fresh outdoor air from the heat exchanger, effectively absorb chemicals and fumes, providing excellent ventilation and promoting healthier indoor air quality for swimmers, spectators, and staff. The heat exchanger also contributes to energy savings by recycling heated and cooled air, pre-conditioning incoming air without mixing air streams.
System Performance
Model: PXHS-60-120-RT-BP-CD-HI-RC-AC
Dimensions: 140”H x 437”L x 176”W
Weight: 29,400 lbs
Supply CFM: 50,000 CFM
Energy Recovery: Aluminum Flat Plate Heat Exchanger
Energy Effectiveness: Winter: 66% / Summer: 60%
Heating Type: Indirect Fired Furnace
Heating Capacity: 1,758 MBH
Cooling Type: Packaged DX Cooling
Cooling Capacity: 43 Tons
Construction
- Outdoor four section split unit
- Double wall thermal break construction with 2” polyIso foam (R-value 6.0/in) insulation
- 0.063 aluminum outer casing
- 0.063 aluminum interior casing
- Welded 8” structural steel base frame and lifting lugs with acrylic paint
- 0.080 aluminum floor with 2” polyIso foam (R-value 6.0/in) insulation
- Aluminum drain pan
Features
- Factory mounted controls
- Integral air-cooled section with multiple staged compressors and VFD lead
- Aluminum crossflow flat plate heat exchanger with modulating face and bypass damper
- 1/8” aluminum tread plate floor
- Plumbing and electrical chase with internal pipe routing
- SA/EA aluminum plenum fans with heresite-coated parts and PIEZO flow rings
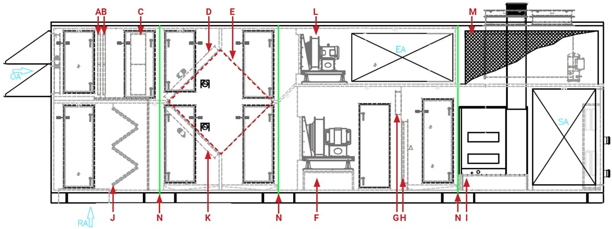
Custom RTU with Natatorium Dehumidification Components
A. OA 2” MERV 8 filters with aluminum rack
B. OA 2” MERV 13 filters with aluminum rack
C. 12” carbon filters with aluminum rack
D. Modulating face and bypass damper
E. Aluminum flat plate heat exchanger
F. SA premium four plenum fan array
G. Coil bypass damper
H. Heresite-coated DX coil
I. Stainless steel indirect fired furnace
J. RA 2” aluminum mesh filters with aluminum rack
K. Recirculation damper
L. EA premium three plenum fan array
M. Condensing section
N. Unit split section

Why choose XeteX Custom Air Handling Solutions
XeteX is a nationwide leader in manufacturing customized air handling solutions to help buildings breathe better and reach their fullest potential. Our innovative engineers are committed to designing high quality, energy efficient HVAC systems with long-lasting performance.
