Custom DOAS with Crossflow Plate HX and 64 tons Packaged DX
This XeteX project showcases the one of seven custom dedicated outdoor air systems for a university.

Unique features include an energy efficient aluminum crossflow flat plate heat exchanger, packaged DX cooling with hot gas reheat, and an indirect gas fired furnace.
Let's take a look at performance and see what's inside.
PERFORMANCE
Model: XHS-30-60-RT-BP-DX-HG-HI-RC-AC
Dimensions: 108”H x 348”L x 110”W
Weight: 16,500 lbs
Supply CFM: 15,000 CFM
Energy Recovery: Aluminum Crossflow Flat Plate Heat Exchanger
Energy Effectiveness: Winter: 59% / Summer: 54%
Heating Types/Heating Capacities:
Indirect Gas Fired Furnace: 475 MBH
Hot Gas Reheat: 317 MBH
Cooling Type: Evaporator (AC)
Cooling Capacity: 64 Tons
CONSTRUCTION
- Outdoor unit with thermal break construction
- 2” double wall injected foam (R-value 14) insulation
- 18ga galvanneal outer casing with acrylic paint
- 0.063 aluminum interior casing
- Welded 8” structural steel base frame with lifting lugs and acrylic paint
- Aluminum floor with 2” injected foam (R-value 14) insulation
- 1/8” aluminum tread plate floor
- Wash-down capable with drains
- 304SS drain pan
FEATURES
- Integral air-cooled section with multiple staged compressors and a VFD lead
- Factory mounted controls
- Aluminum crossflow flat plate heat exchanger with modulating face and bypass damper
- SA/EA plenum fans with PIEZO flow rings and fan back draft dampers
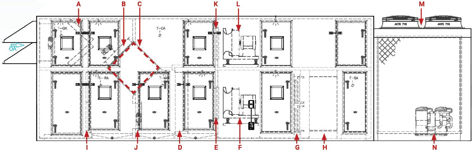
COMPONENTS
A. OA 4” MERV 8 filters on aluminum rack
B. Face and bypass damper
C Aluminum flat plate HX
D. DX coil
E. Blower inlet damper
F. SA premium two fan plenum array
G. Hot gas reheat coil
H. 409 SS indirect fired gas furnace
I. RA 4” MERV 8 filters on aluminum rack
J. Recirc damper
K. Blower inlet damper
L. EA premium two fan plenum array
M. Air-cooled condensing section
N. Compressors

Learn more about XeteX Custom DOAS Solutions!