Custom DOAS with Energy Wheel, Packaged DX and Water Source Heat Pump
Designed for an academic facility, this XeteX custom dedicated outdoor air system (DOAS) is one of four units in this project. 
Unique features of this custom XeteX DOAS unit include 100% outdoor air, energy efficient heating and cooling using an enthalpy energy recovery wheel with full season controls, pre-heat and pre-cool coils to a building loop, and perforated liners in SA/EA fan sections for quiet operation.
Let's take a look at performance and see what's inside.
Performance
Model: AVR-2500-RT-RW-DX-HG-HP-FF
Dimensions: 120”H x 254”L x 116”W
Weight: 21,500 lbs
Supply CFM: 14,675 CFM
Heating Types/Heating Capacities:
DX Heating Coil: 282 MBH
Hot Gas Reheat: 279 MBH
Cooling Type: DX Cooling Coil
Cooling Capacity: 52 Tons
Energy Recovery: Enthalpic Energy Wheel
Energy Effectiveness: Winter: 72% / Summer: 70%
Construction
- Outdoor unit with thermal break construction
- 4” double wall casing and injected foam (R-value 28) insulation
- 16ga galvanneal outer casing with acrylic paint
- 20ga galvanized interior casing
- 16ga galvanized floor with 4” injected foam (R-value 28) insulation
- Welded 8” steel base frame with lifting lugs and acrylic paint
- 1/8” aluminum tread plate floors with 2” upturn lip, wash-down capable with drains
- 304 SS drain pan
Features
- 3Å enthalpy energy wheel with full season controls
- Energy recovery water coil
- Integral air-cooled section contains multiple staged compressors and a VFD lead
- 2” perforated liners located in SA/EA fan sections
- IP 65 rated unit LED lights and GFI; 65 kAIC
- Factory mounted controls
- Heating and cooling coil sections include a stacked coil rack and 304 SS liner
- SA/EA: 2” spring seismic isolators, Piezo flow rings and fan back draft dampers
Components
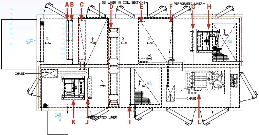
A. OA 2” MERV 8 filters with galvanized rack
B. SA 4” MERV 13 filters with galvanized rack
C. Energy recovery coils with SS casing
D. Enthalpy energy wheel
E. DX coil with SS casing
F. Hot gas reheat coil with SS casing
G. SA back draft damper
H. SA two premium plenum fan array
I RA 2” MERV 8 filters with galvanized rack
J. EA back draft damper
K. EA two premium plenum fan array
L. Heat pump skid

Learn more about XeteX custom DOAS Solutions!