Custom ERV with a Corrosion-Resistant Design
Designed for a wastewater treatment plant, this XeteX custom energy recovery ventilator (ERV) features a corrosion-resistant design for long lasting performance in harsh conditions, explosion-proof equipment for safe operation, two stages of electric heating, and an epoxy-coated crossflow heat exchanger for energy efficiency.

Custom ERV shown with doors open for viewing many of the unit features inside including an epoxy-coated crossflow heat exchanger.
Let's take a look at the performance and see what's inside.
PERFORMANCE
Model: XHS-24-36-RT-BP-HE-HE
Dimensions: 69.5”H x 174”L x 54”W
Weight: 3,900 lbs
Supply CFM: 2,100 CFM
Heating Type/Capacities: Two electric heaters: 25kW / 30kW
Energy Recovery: Crossflow Heat Exchanger
Energy Effectiveness: Winter: 76% / Summer: 60%
CONSTRUCTION
- Outdoor unit
- 2” double wall casing with injected foam (R-14) insulation
- 18ga galvanneal steel outer casing with acrylic paint
- 0.063 aluminum interior casing
- 6” structural steel base frame with welded lifting lugs and acrylic paint
- 0.080 aluminum unit floor with 2” injected foam (R-14) insulation
- 304 SS drain pan with MPT connection
FEATURES
- Epoxy-coated aluminum crossflow plate heat exchanger
- Phenolic-coated SA/EA blowers
- Explosion-proof RA & EA temp sensors
- Explosion-proof EA fan motor
- Extended lube lines for SA/EA fans
- Class 1 Div 1 RA/EA tunnel
- Two stages of electric heating
- Aluminum OA/SA interior
- 304 stainless steel RA/EA interior
- Liquid tight conduit throughout unit
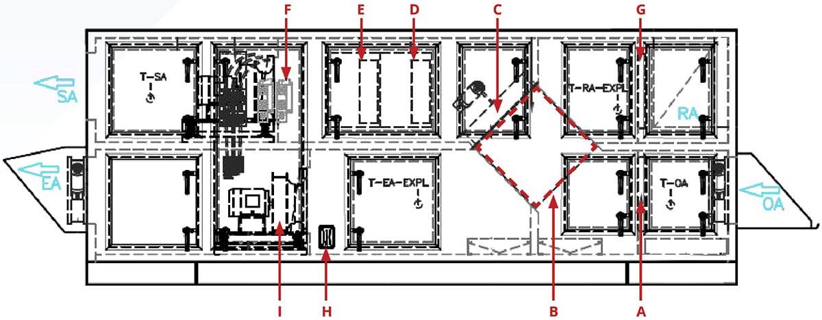
COMPONENTS
A. OA 2” MERV 8 filters with stainless steel rack
B. Epoxy-coated flat plate heat exchanger
C. Aluminum heat exchanger modulating face and bypass damper
D. Electric heater (25kW)
E. Electric heater (30kW)
F. SA premium plenum fan with aluminum base
G. RA 2” MERV 8 filters with stainless steel rack
H. GFI transformer
I. EA premium plenum fan with SS base
