Custom Make Up Unit with Corrosion Resistant Design
By
XeteX
·
1 minute read
Designed for a wastewater treatment plant, this XeteX unit is one of two custom make up units (MAU) for this project featuring a corrosion resistant design.
The MAU features a corrosion resistant design with an all-aluminum construction, an explosion-proof SA blower and motor, and an indirect gas fired furnace.
Let's take a look at performance and see what's inside.
PERFORMANCE
Model: XAH-2500-RT-HI
Dimensions: 41”H x 126”L x 68”W
Weight: 1,900 lbs
Supply CFM: 2,500 CFM
Heating Type: Indirect Gas Fired Furnace
Heating Capacity: 149 MBH
CONSTRUCTION
- Outdoor unit
- 2” double wall casing with injected foam (R-value 14) insulation
- 0.063 aluminum exterior casing
- 0.050 aluminum interior casing
- 0.080 aluminum floor with 2” PolyIso foam (R-value 6.0/in) insulation
- 5” welded structural steel base frame with welded lifting lugs
FEATURES
- 304 SS indirect gas fired furnace
- Factory mounted controls
- Aluminum conduit
- Welded aluminum floors
- Piezo flow ring
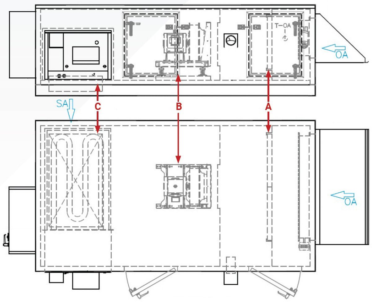
COMPONENTS
A. OA 2” MERV 8 filter with aluminum rack
B. SA premium plenum fan with corrosion-resistant coating
C. 304 SS indirect gas fired furnace

Learn more about XeteX Custom Air Handling Solutions for Wastewater Treatment Plants!