Custom Replacement AHU for a Natatorium
By
XeteX
·
1 minute read
This XeteX custom replacement air handler was given a corrosion resistant design for a natatorium. The unit features an aluminum interior, electrophin-coated DX and HW coils and includes 64 tons packaged refrigeration for 26K CFM.
Let's take a look at performance and see what's inside.
Performance
Model: PXAH-26000-RT-RC-CD-HW-AC
Dimensions: 104”H x 287”L x 120”W
Weight: 15,200 lbs
Supply CFM: 26,000 CFM
Heating Type: HW Coil
Heating Capacity: 2,003 MBH
Cooling Type: DX Coil
Cooling Capacity: 64 Tons
Construction
- Outdoor unit
- 2” double wall casing and injected foam (R-value 14) insulation
- 18ga galvanneal exterior casing with acrylic paint
- Aluminum interior for corrosion resistance
- 0.063 aluminum interior casing
- 0.080 aluminum floor with 2” PolyIso foam (R-value 6.0/in) insulation
- 8” welded structural aluminum base frame with lifting lugs and acrylic paint
- Aluminum drain pan
Features
- Integral air-cooled condensing section with multiple staged compressors and a VFD lead
- Factory mounted controls
- Piezo flow rings
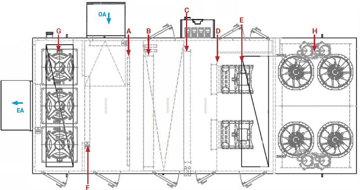
Components
A. OA 2” MERV 8 filters with aluminum rack
B. Electrophin-coated DX coil
C. Electrophin-coated HW coil
D. SA fan back draft damper
E. SA four premium plenum fans
F. Recirc damper
G. EA three premium plenum fans
H. Condensing section

Learn more about XeteX Retrofit Replacement Air Handling Solutions!