Custom RTU with Corrosion Resistant and Wash Down Design
Designed for an international airport, this XeteX custom RTU is one of 21 replacement units supporting the Buy America Build America Act.
The corrosion-resistant design features an aluminum construction with epoxy-coated coils and fan bases. It is constructed for wash-down and serviceability. Other unique features include a multi-zone damper which efficiently delivers heating and cooling through 12 zones; bi-polar ionization and high-efficiency filtration that provide indoor air quality.
Let's take a look at performance and see what's inside.
PERFORMANCE
Model: XAH-3000-RT-CW-HW-FF
Dimensions: 78”H x 215”L x 93.5”W
Weight: 2,985 lbs
Supply CFM: 2,100 CFM
Heating Type/Capacity: HW coils: 123 MBH
Cooling Type/Capacity: CW coils: 104 MBH
CONSTRUCTION
- Outdoor unit with thermal break construction
- 4” double wall casing with injected foam (R-28) insulation
- 0.063 aluminum outer casing with acrylic paint
- 0.050 aluminum interior casing
- 6” structural steel base frame with welded lifting lugs and acrylic paint
- 0.050 aluminum unit floor with 4” injected foam (R-28) insulation
- 304 SS drain pan
FEATURES
CORROSION-RESISTANCE- Aluminum construction
- Epoxy-coated coils and parts
WASH-DOWN CAPABILITY
- 1/8” aluminum tread plate floor with 2” up turn lip and drains
- NEMA 4x junction boxes
- Bottom lined base frame
SERVICEABILITY
- Removable coil panel for maintenance
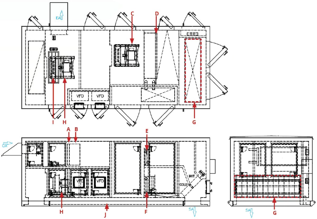
COMPONENTS
A. OA 2” MERV 8 filters with aluminum rack
B. RA 12” MERV 16 filters with aluminum rack
C. SA premium fan with an epoxy-coated base and aluminum wheel
D. Bi-polar ionization
E. Epoxy-coated HW coil with SS casing
F. Epoxy-coated CW coil with SS casing and SS drain pan
G. SA multi-zone damper
H. EA premium fan with an epoxy-coated base and aluminum wheel
I. Recirc damper
J. Lined base frame
