Semi-Custom ERV Improves Energy Effectiveness and Sustainability
Energy recovery technology plays a crucial role in XeteX custom and AVENTUS semi-custom energy recovery ventilators (ERV) and dedicated outdoor air systems (DOAS). Explore this AVENTUS semi-custom ERV that boosts energy efficiency and indoor air quality.

This AVENTUS semi-custom energy recovery ventilator, designed for a southeastern government facility, utilizes an enthalpic crossflow plate heat exchanger providing energy efficiency. High-efficiency filters at the outdoor air and return air sections capture airborne particles for improved indoor air quality.
AVENTUS Semi-Custom Energy Recovery Ventilator
PERFORMANCE
Model: AVT-ED-59.1-60-RT-BP
Dimensions: 91”H x 173”L x 92”W
Weight: 6,050 lbs
Supply CFM: 12,000 CFM
Energy Recovery: Enthalpic Crossflow Plate
Energy Effectiveness: Winter: 68% / Summer: 56%
CONSTRUCTION
- Outdoor unit
- 2” double wall casing with 2” injected foam (R-14) insulation
- 20ga galvanized metal exterior casing with acrylic paint
- 20ga galvanized metal interior casing
- Welded 5” structural steel base with lifting lugs and acrylic paint
- 20ga galvanized steel floor with 2” injected foam (R-14) insulation
FEATURES
- Full unit controls with BACnet MS/TP and LCD display
- Crossflow bypass damper
- Fiberglass floor grates in all floor duct openings
- SA/EA EC motors
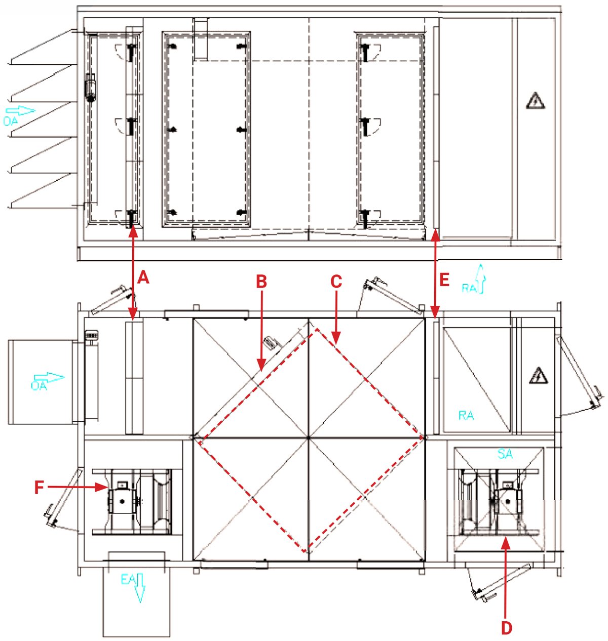
COMPONENTS
A. OA 4” MERV 13 filters
B. Modulating bypass damper with actuator
C. Enthalpic crossflow plate heat exchanger
D. SA fan
E. RA 2” MERV 8 filters
F. EA fan

Enthalpic Crossflow Plate Heat Exchanger Benefits to Energy Effectiveness
One of the most innovative aspects of the featured AVENTUS ERV is its use of an enthalpic crossflow plate heat exchanger (HX). This HX is designed to maximize energy recovery by transferring both heat and moisture between air streams. This results in energy effectiveness with ratings of 68% in winter and 56% in summer.
The seasonal effectiveness of an enthalpic crossflow plate heat exchanger is particularly beneficial in regions with extreme temperature variations. During winter, the HX recovers heat from the outgoing air, reducing the need for additional heating. In summer, it helps cool the incoming air, easing the load on cooling systems.
For HVAC engineers and facility owners and managers, the benefits an enthalpy crossflow plate heat exchanger have in enhancing heating and cooling efficiencies lead to lower operational costs and a reduction in the facility's carbon footprint for a more sustainable operation.